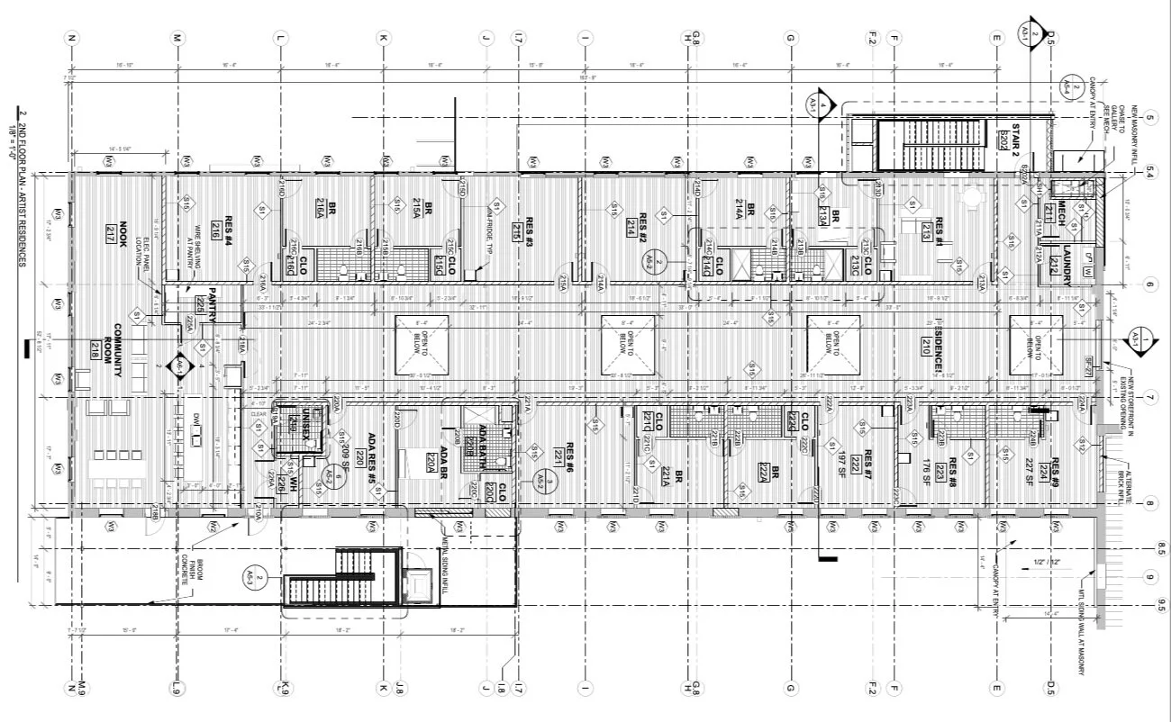
Floor Plan of the Residency
DEPENDENCIAS DE RESIDENCIA (versión español próximamente)
Cada estudio incluye un dormitorio / baño privado y un espacio de estudio (excepto los estudios para escritores que tienen un estudio y un dormitorio combinados). Los dormitorios / estudios están en el segundo piso de Stove Works. Hay un ascensor en el patio para el acceso de sillas de ruedas.
OPCIONES DE ESTUDIO
Estudio estándar (6) - dormitorio de 100 pies cuadrados con estudio de 250 pies cuadrados
Escritor / Curador / Estudio no basado en objetos (2) - dormitorio / estudio de 150 pies cuadrados para artistas que no requieren espacio de estudio separado
Estudio y dormitorio estándar accesibles según la ADA (1)
Colaboración (1)
Solo estudio / Familia (1) Para artistas de la ciudad o residentes familiares que viven fuera del sitio.
COLABORACIONES
Si estás postulando como un equipo colaborativo, hay dos opciones de estudio.
1. Compartir un estudio estándar (un dormitorio / un estudio) con la opción de dos camas individuales o una cama doble
2. Solicitudes individuales (dormitorio y estudio separados) NOTA: la solicitud individual no garantiza necesariamente ambos lugares. Se considerará en el proceso de revisión.
SOLICITUD FAMILIAR
Las solicitudes de residencia familiar se considerarán caso por caso. Haremos todo lo que esté a nuestro alcance para acomodar a los residentes familiares. Comuníquese con residency@stoveworks.org
